Circuit Breaker Selection Guide for Projects
2026-03-17 16:01:34
To choose the right circuit breaker for your project, you need to think carefully about the electrical factors, the surroundings, and how the circuit will be used. Choosing the right circuit breaker has a direct effect on how reliable the system is, how safe it is, and how much it costs to run in the long run. It is important to know about load traits, fault current levels, and security coordination in order to make sure that manufacturing sites, utility networks, and business setups all work well. The right choice lowers the chance of downtime and increases the safety and efficiency of operations.
![]() |
|
Understanding Circuit Breaker Fundamentals
In many different types of situations, modern circuit breakers are an important part of electrical safety systems. These important devices stop fault currents while keeping the load running normally. This keeps expensive technology safe and keeps people safe. The trip unit is the smart heart; it constantly checks the electrical parameters and starts protective actions when something goes wrong. When trip signals are sent, operating mechanisms act right away, opening and shutting in exact sequences. Moulded frames keep the structure strong and protect against things like moisture, dust, and changes in temperature. Arc chutes are very important for putting out electrical arcs safely during interruption events. Newer models have magnetic release features that quickly get rid of arc energy. This keeps equipment from getting damaged and keeps the system stable. Contact systems use special materials that can handle being used over and over again while keeping electrical resistance to a minimum. Knowing about these basic parts helps engineers make smart choices during the choosing process. Each part adds to the overall performance of protection and the length of time it works.
Key Selection Parameters for Industrial Applications
Key Selection Parameters for Industrial Applications conditions, while giving solid security against overcurrent. Critical processes in factories, data centers, and hospitals need power to be available all the time. The rated current is the biggest steady current that the circuit breaker can handle without getting too hot. This parameter needs to match the real load needs while still leaving enough room for future growth. Voltage levels make sure that the insulation in the electrical system works well together. The interrupting capacity tells you how much problem current the breaker can safely clear. In industrial systems with a lot of capability, where short-circuit currents get pretty high, this specification becomes very important. Not having enough interrupting ability can seriously circuit-break harm people and damage equipment. When it comes to thermal and magnetic safety, the equipment further down the line needs to be carefully coordinated. Time-current curves must allow selective coordination so that devices further down the line can fix small problems while the main breaker deals with bigger problems with the system. Some environmental factors to think about are the ranges of temperatures, the effects of altitude, and the amounts of contamination. Equipment in industrial settings is often put through rough conditions that normal ratings may not be able to handle.
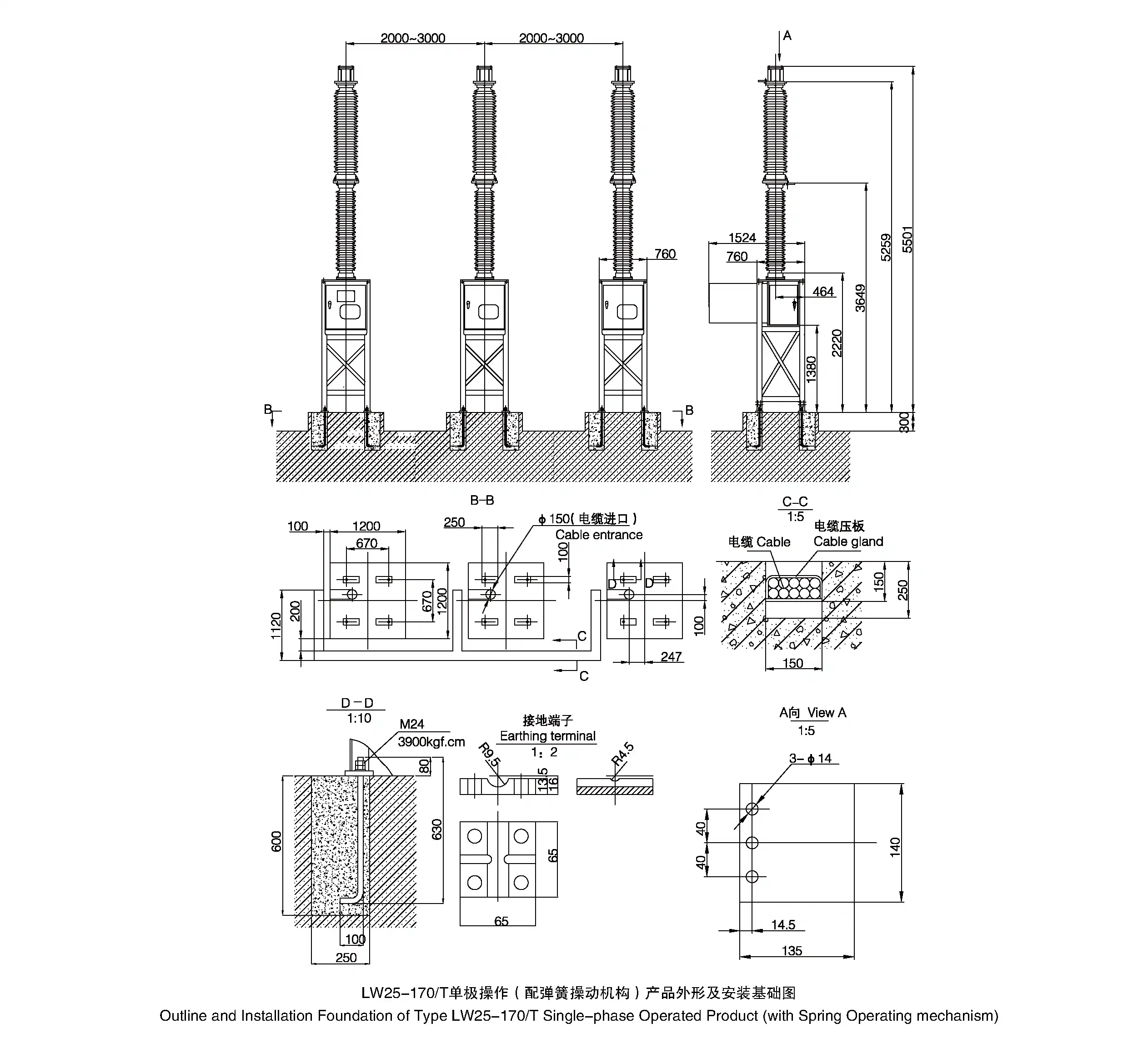
Utility-Grade Circuit Breaker Specifications
Utility companies managing transmission and distribution networks require specialized circuit breaker solutions that ensure grid stability and reliability. These applications demand reliable performance under varying load conditions and fault scenarios.SF6 gas circuit breakers perform well in utility applications due to their good interrupting capabilities and long service life. The self-blast thermal expansion principle enables effective interruption of challenging faults, including out-of-phase conditions and short-line faults. Variable clearance designs optimize performance across different current levels. Seismic resilience becomes important in utility installations where equipment must withstand earthquake forces while maintaining operational capability. Grade 8 earthquake resistance ensures continued protection during natural disasters. Low noise operation addresses environmental concerns in populated areas. Hydraulic spring operating mechanisms reduce operational noise while providing reliable performance. Sound levels below 45dB meet strict municipal regulations. Remote monitoring capabilities enable utilities to track breaker status and performance parameters in real-time. These features support predictive maintenance programs that reduce unexpected failures and extend equipment life.
Environmental and Safety Considerations
When choosing a modern circuit breaker, you have to take into account safety and environmental rules that are always changing from one area to another. Europe's rules to phase out SF6 are driving demand for eco-friendly options that don't lose any speed. Hybrid gas versions are better for the environment while still stopping efficiency. These methods are in line with goals for sustainability and provide solid safety. Materials that don't catch fire meet NFPA 70 fire rules. This is especially important in healthcare centers and business buildings. When thinking about arc-flash safety, you need to carefully look at the event energy levels and security limits. Modern circuit breakers have features that lower the risk of arc flash, which protects repair workers and lowers the cost of insurance. Monitoring tools for gas leaks let people know early on when possible spills could affect the environment. These features help make sure that regulations are followed while keeping operations reliable. Third-party evaluation makes sure that circuit breakers live up to their performance claims. When installing things at high elevations, you need to pay extra attention to how the height affects the protection and stopping abilities. Mountainous and desert areas have their own problems that can only be solved with equipment that can work at 4,000 meters.
Integration with Power System Protection
Effective circuit breaker selection requires understanding protection coordination principles and system integration requirements. Proper coordination prevents nuisance tripping while ensuring fault clearing within acceptable timeframes. Instrument transformers provide accurate current and voltage measurements for protection systems. Compatibility between transformers and protection devices ensures precise fault detection and appropriate response timing. Sensor technology advances enable more sophisticated protection schemes. Relay coordination involves setting time delays and pickup levels that achieve selective operation. Downstream devices should clear faults before upstream breakers operate, maintaining maximum system availability. Computer-based coordination studies optimize these settings. Communication protocols enable integration with modern automation systems. SCADA connectivity provides remote control capabilities and historical data logging. These features support advanced grid management strategies and improve operational efficiency. Power quality considerations include harmonic content and voltage regulation requirements. Renewable energy integration introduces unique challenges that circuit breaker selection must address. Solar and wind installations create intermittent generation patterns that affect protection requirements.
Maintenance and Lifecycle Management
Circuit breaker selection impacts long-term maintenance requirements and total ownership costs. Modular designs simplify component replacement and reduce downtime during maintenance activities. Preventive maintenance schedules depend on operating conditions and manufacturer recommendations. Frequent operations increase wear rates and require more frequent maintenance intervals. Environmental factors also influence maintenance needs. Spare parts availability ensures continued operation throughout the equipment lifecycle. Standardization across multiple installations reduces inventory requirements and circuit breakers while ensuring compatibility. Global support networks provide technical assistance and emergency parts supply. Testing procedures verify continued performance and identify potential issues before failures occur. Routine testing includes contact resistance measurements, insulation testing, and operating time verification. These procedures maintain reliability while supporting regulatory compliance. Lifecycle cost analysis considers initial purchase price, installation costs, maintenance expenses, and end-of-life replacement. Energy efficiency improvements may justify higher initial costs through reduced operational expenses.
Conclusion
To choose the right circuit breaker, you need to look at a lot of factors, including electrical features, weather conditions, and operating needs. To get good performance in a wide range of situations, you need to know about load features, fault current levels, and safety coordination concepts. When you make the right choice, you can solve the problems that come up in industrial sites, power networks, and business systems. Safety rules and concerns about the environment continue to shape the growth of technology, and planning for upkeep has an effect on long-term costs. Reliable electricity security systems that support important processes and keep people safe are built on professional knowledge and tried-and-true solutions.
FAQ
1. What should you think about when choosing a project's Circuit Breaker?
Some important factors are the maximum current, the voltage compatibility, the stopping capacity, and how well the safety works with other electrical devices. Conditions like temperature range, altitude, and contamination levels should also be checked to make sure the system will work reliably in the place where it is going to be installed.
2. Why is it important for a Circuit Breaker to be able to interrupt?
The interrupting capacity tells us the biggest fault current that a circuit breaker can safely cut off without hurting the electrical system. When short-circuit currents can be very high in utility and industrial power systems, it is very important to choose a breaker with enough stopping capacity to keep devices safe and the system safe.
3. How does security cooperation make the Circuit Breaker work better?
Protection coordination makes sure that small problems are fixed by devices further down the line before they reach circuit breakers higher up. This chosen operation cuts down on power outages that aren't needed, keeps sensitive equipment safe, and makes the electrical distribution system more reliable and efficient as a whole.
Partner with Xi'an Xidian for Reliable Circuit Breaker Solutions
Xi'an Xidian delivers comprehensive circuit breaker manufacturer expertise across medium and low-voltage applications. Our proven solutions serve diverse industries with customized protection systems that optimize performance and reliability. Contact our technical experts at serina@xaxd-electric.com, amber@xaxd-electric.com, or luna@xaxd-electric.com to discuss your specific project requirements and access our extensive product portfolio.
References
1. IEEE Standard C37.06-2009, "IEEE Standard for AC High-Voltage Circuit Breakers Rated on a Symmetrical Current Basis."
2. IEC 62271-100:2021, "High-voltage switchgear and controlgear - Part 100: Alternating current circuit-breakers."
3. NEMA SG 3-1981 (R2017), "Low Voltage Power Circuit Breakers"
4. IEEE Standard 1547-2018, "IEEE Standard for Interconnection and Interoperability of Distributed Energy Resources with Associated Electric Power Systems Interfaces."
5. ANSI/IEEE C37.010-2016, "IEEE Application Guide for AC High-Voltage Circuit Breakers."
6. IEC 60947-2:2016, "Low-voltage switchgear and controlgear - Part 2: Circuit-breakers."

